Pavel Mudřík architekti
Práce
Media
Kontakt
EN
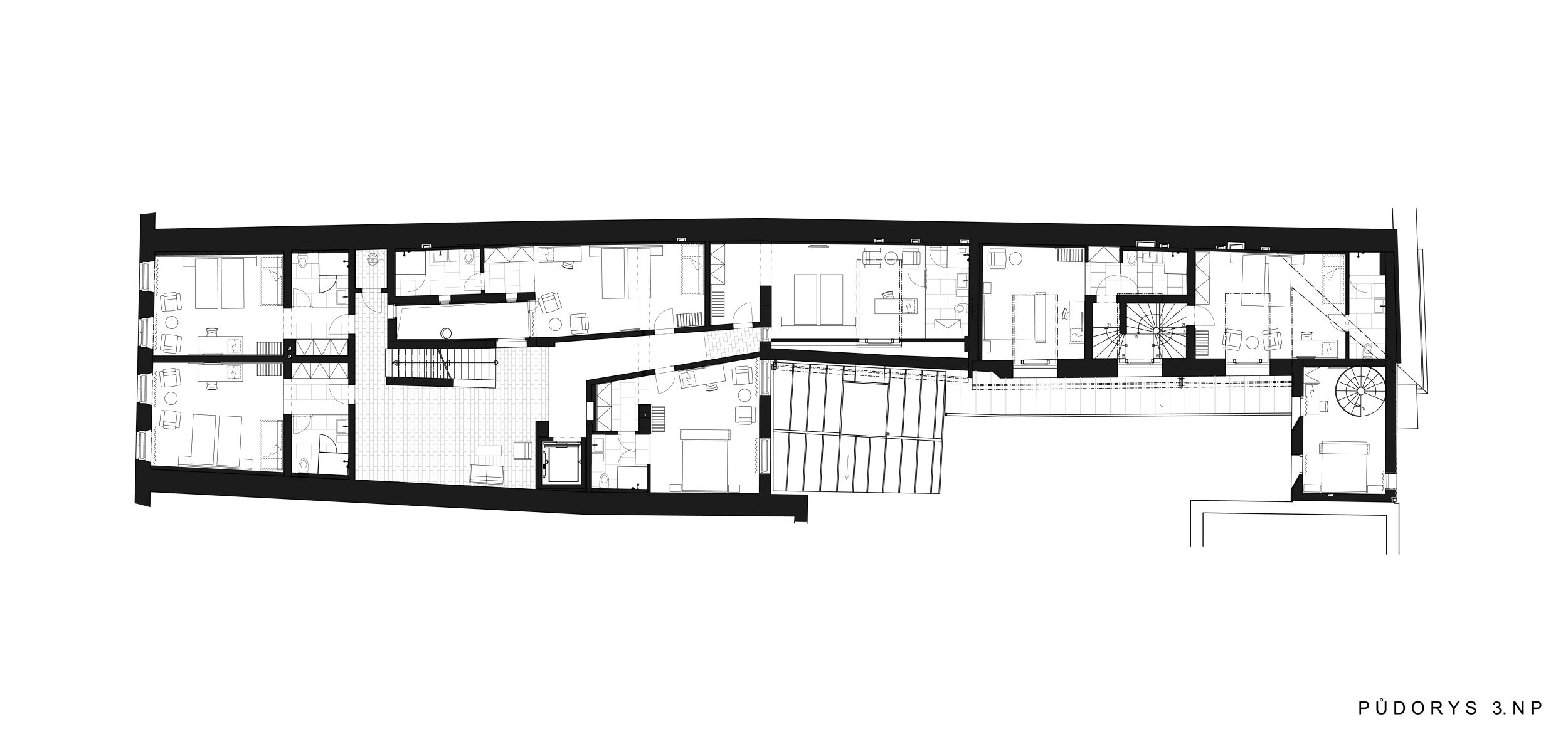
Hotel Purkmistr v Kroměříži
Kroměříž, 2014
Architekt
Ing. arch. Pavel Mudřík
Půdorysy