Územní studie Boněcký rybník
Zlín - Bartošova čtvrť, 2021
Architekt
Ing. arch. Pavel Mudřík
Ing. arch. Martina Gábor
Spolupráce
Ing. arch. Lubomír Beran / vizualizace
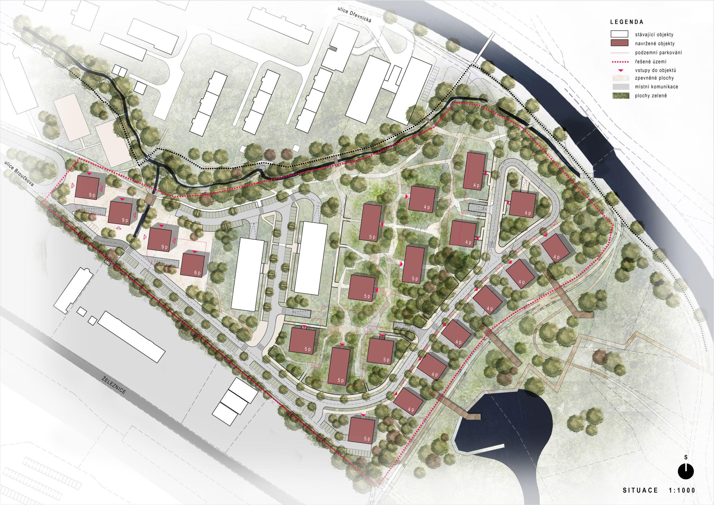
Zásadní VLIVY na urbanistický návrh obytného celku Boněcký rybník:
Stabilizovaná urbanistická a objemová struktura stávajícího sídelního útvaru Bartošovy čtvrti z let šedesátých až osmdesátých. Zde vidíme hodnotu především v přiměřené - optimální hustotě zastavění a v podlažnosti, s převažujícími čtyřmi nadzemními obytnými podlažími. Přímá návaznost budoucí nové zástavby na stávající obytnou zástavbu Bartošovy čtvrti i na stávající stavby občanské vybavenosti / Dostupnost MHD / Rozestavěnost dvou bytových domů v jádru řešeného území soukromou investiční firmou. Velikost těchto, v současnosti, dostavovaných bytových domů, jejich půdorysná stopa a osazení je pro náš návrh dotvoření území limitující, stejně jako je limitující způsob dopravního napojení na stávající dopravní infrastrukturu ze severu, podél potoka.
Hodnotné přírodní prvky, ovlivňující charakter zástavby:
Vodní tok tzv.“ Prudký potok“, oddělující se z řeky Dřevnice ve splavu, diagonálně protékající mezi starou a novou zástavbou Bartošovi čtvrti. Potok je lemován stávající, výraznou vzrostlou vegetací s hodnotnými solitéry. Celkově je právě zde velký potenciál tuto stávající přírodní strukturu rozvinout doplněním prvků drobné architektury, jako lávky, zpevněné břehy a přístupová místa, dendrologicky pročistit a doplnit dosadbou a celkově dosáhnout nečekaného přírodního lineárního parku mezi dvěma obytnými celky a takto je propojit
Důležitým prvkem v území je řeka Dřevnice, jež vytvářející budoucí kompaktní zástavbě zázemí v hodnotné kvalitě klidného, v přírodě zasazeného obytného území. Návrh si uvědomuje hodnoty a potenciál řeky. Řeka již nyní soustřeďuje pozornost a energii pro sporty i relax. Víme, že jsou zde nevyužité možnosti. Plocha záplavového území řeky Dřevnice, dnes na západní straně vymezena přírodním ochranným valem ve tvaru meandru, která bude v budoucnu plošně navazovat a doplňovat zastavěnou část sídelního celku. Nyní nevyužívaný prostor, město uvažuje kultivovaně a promyšleně přetvořit v přírodní, aktivní i relaxační plochy. Ve výsledku to pozitivně obohatí kvalitu nejen navrhovaného území, ale i obou propojených obytných celků stávající Bartošovy čtvrti a nového Boněckého rybníka. Území tak nabyde celoměstského významu.
Negativa stávajícího stavu širšího území:
Umístění řešeného území v přímé blízkosti neřízené průmyslové zóny na jižní straně území. V bezprostřední blízkosti jižní hranice řešeného území probíhá vlaková trat směr Vizovice - Otrokovice. Neřešená stacionární doprava na ploše sídelního celku Bartošova čtvrt, kde je parter neúměrně obtěžkán stojícími automobily podél všech komunikací a tím zabraňující přirozenému kontaktu pěších se zelení.
Popis navrženého řešení:
Návrh urbanistického řešení s těmito výše uvedenými skutečnostmi pracuje a koncepčně je do řešení zahrnuje. Při návrhu nových staveb, jejich prostorových vazeb a uspořádání klademe důraz na to, aby tyto stavby vyjadřovali a zhodnocovali prostorový kontext a pozitiva toho daného konkrétního místa uvnitř řešeného prostoru a také aby v návrhu byla vyjádřena povaha veřejného prostoru, který zde chceme získat a jakými architektonickými prostředky toho chceme dosáhnout.
Dopravní návaznost na stávající Bartošovu čtvrt od západu, kde se nachází stavby občanské vybavenosti, jako střední škola, penzion, ubytovna a pod. Zde chceme podpořit městský význam stávající zástavby a navrhujeme zde kompozici čtyř solitérních bodových domů, uspořádaných do lineární kompozice ve směru východ – západ. Lineární uspořádání štíhlých objemů reaguje na proporční stísněnost přístupového pozemku a na skutečnost napříč pozemkem umístěných stávajících, dostavovaných nových domů. Také chceme, aby taková kompozice čtyř staveb, z nichž jsou jen tři výrazně vertikální, vytvořila jasnou zapomavatelnost místa, byla objemově kompozičně prospěšná pro současnou roztříštěnou a chaotickou zástavbu, ale také, aby byla vnímána jako východní výrazná kompozice ze vzdálenějších pohledů do území, například z východního příjezdu od Vizovic. Tyto bodové domy by měly být kompaktní, pevné hmoty s lodžiemi. Navrhujeme zde v každé stavbě dvě první podlaží pro maloplošnou občanskou vybavenost a služby. Objekty mají dvě podzemní podlaží pro parkování a sklady. Dispozice bytů jsou uspořádány přehledně kolem centrálního vertikálního jádra. Domy jsou položeny na převažující dlážděné plochy s lokální výsadbou stromů a významně zde posilujeme prvek stávající přítokové větve potoka, z kterého vytváříme atraktivní přírodní prvek plenéru.
Střední část sídelního celku je navržena jako solitérní „plující“ objekty na vyvýšené niveletě. Vyvýšení, neboli srovnání nivelety, řešíme vyrovnávacími zídkami v komunikačním koridoru, směrem k přírodní linii kolem potoka se terén mírně dorovnává do nuly. Jedná se o kompozici domů čtyř a pěti podlažních, posazených přímo na terénu. Hlavním přínosem by měla být charakteristická atmosféra protékajícího, přírodního veřejného prostoru, navazujícího na příčný přírodní prvek potoka. V prostorách mezi domy bychom chtěli získat klidný, automobily neobtěžovaný prostor, která jsou schována v podzemí. Orientace domů je shodná se stávajícími rozestavěnými domy. Mezi domy budou měkké, organické pěší plochy pobytové i komunikační, s místy pro využívání všech skupin obyvatel domů. Vyvýšení nivelety je využito pro efektivní umístění podzemního parkingu a zvláště pro vytvoření neobvyklé intimní situace.
Do prostoru v bezprostředním kontaktu s průmyslovou zónou, která je uzavřena betonovou konstrukcí umisťujeme parking na terénu, přehledně organizovaný podél příjezdové komunikace a doplněný výraznou vzrostlou zelení. Tato komunikace je hlavním příjezdem do území a z něj jsou navrženy postupně se oddělující příjezdy do dílčích částí navrženého území.
Východní okraj řešeného sídla, využívá pro organizaci zastavění lineární uspořádání podél meandru protipovodňového valu. Domy jsou zde uspořádány podél komunikace za sebou. Na terénu, v prvním podlaží jsou v jádru vstupy a pod objekty vsunuté, kryté parkování. Bydlení je navrženo od druhého podlaží výš. Tímto prostorovým uspořádáním reagujeme na výškové skutečnosti stávajícího valu, tzn. bydlení je nad touto niveletou a vstupy s parkováním pod ní. Celkově menší objemy domů na odlehčené skeletové podnoži vytváří zajímavou uliční strukturu, kdy domy nejsou pevně spojeny s terénem, ulici neuzavírají a umožňují průhledy do okolí. Z pohledů od východu zpět je příjemné pozorovat jejich pravidelné uspořádání, jež logicky reaguje a podtrhuje závěr řešeného území a také umožňuje přechod do přírodní odpočinkové části vnitřního meandru. Zde si také uvědomujeme možnosti práce s terénem. Využíváme a podporujeme existenci zaužívané pěší trasy po „hřebeni“ valu a naznačujeme možné způsoby zhodnocení této přírodní trasy tím, že zde doporučujeme lehké stavební konstrukce, jako mola, lávky, stupně, pozvolné svahy a pod, abychom zpřístupnili vnitřní plochy meandru, směřující k řece.












